
General Meeting
Wednesday 12 March 2014
Roma Administration Centre
NOTICE OF MEETING
Date: 7 March 2014
Mayor: Councillor R S Loughnan
Deputy Mayor: Councillor W S Wason
Councillors: Councillor J L Chambers
Councillor R J Denton
Councillor P J Flynn
Councillor W M Newman
Councillor C J O’Neil
Councillor M L Price
Councillor D J Schefe
Acting Chief Executive Officer: Mr Michael Parker
Senior Management: Mr Cameron Castles (Director Infrastructure Services)
Mr Rob Hayward (Director Development, Facilities & Environmental Services)
Ms Sharon Frank (Director Corporate, Community & Commercial Services)
Officers: Ms Jane Frith (Coordinator Corporate Communications)
Please find attached agenda for the General Meeting to be held at the Roma Administration Centre on March 12, 2014 at 9.00am.

Michael Parker
Acting Chief Executive Officer
TABLE OF CONTENTS
Item Subject
No
Reports
10.1 Proposed Permanent Closure of Part of Myall Downs Road and Opening of a Part of the Same Road
Attachment : Department of NRAM - Proposed Permanent Road Closure of an Area of about 7.8ha being part of Myall Downs Road within Lot 5 on AB223 and shown as road to be closed on drawing DD2013/171 - Applicants: K & M Scott - 01/11/2013............................................................................................................... 4
10.2 Application for Refund of Cost of Work Performed on Mt Abundance Road Reserve
Attachment 1: Letter from Rodney Payne - Request for Reimbursement for Repair Costs to Mt Abundance Road - 2 March 2014......................................................... 9
Attachment 2: SLR Kruger - Copy of invoice for works carried out to repair washout gully on Mt Abundance Road for Rodney Payne - 21 December 2013............... 10
Attachment 3: Letter from Steve Kruger, Steve's Dingo & Dozer Hire - RE Works conducted for Rodney Payne to repair & reconstruction of washout gully alongside Mt Abundance Road - 24 February 2014................................................ 11
Attachment 4: Photos taken by A/CEO Michael Parker at property of Rodney Payne of repair & reconstruction of washout gully along Mt Abundance Road........... 12
11.1 Be Healthy Maranoa - Healthy Communities position
Attachment 1: HCI - Budget breakdown.................................................................... 16
Attachment 2: Letter of Support for BHM. Fiona Flanders, SQIT. 28/02/2014.......... 17
Attachment 3: Letter of Support for BHM. Laurice Kennedy, Vital Health. 27/02/2014 19
Attachment 4: Letter of Support for BHM. Sue Harrison, Blue Care. 26/02/2014..... 20
Attachment 5: Letter of Support for BHM. Fiona Vincent, MRC Sport and Rec. 04/03/2014.............................................................................................................. 21
Attachment 6: Letter of Support for BHM. Kathy Morrow, Roma Community Garden. 04/03/2014........................................................................................... 22
Attachment 7: Letter of Support for BHM. Kathy Morrow, South West Hospital and Health Service. 04/03/2014 (Signed)............................................................. 23
Attachment 8: MAR1214 REPORT ON EVALUATION OF BHM 2010-2014 FOR MRC 25
Attachment 9: Letter of Support for Anglicare............................................................ 47
12.1 Request - Concrete Kerbing King St, Surat
Attachment 1: Megan Cau - Request for Concrete Kerbing to the Access of 33 King Street, Surat - 20/01/2014.............................................................................. 48
Attachment 2: Initial Acknowledgement to Megan Cau re Concrete Kerbing to the Access of 33 King Street, Surat................................................................................ 49
Attachment 3: Acknowledgement Letter to Megan Cau Re: Request for Concrete Kerb - 33 King St, Surat...................................................................................... 50
12.2 Addition of Streets to Council's Road Register
Attachment : Roads Proposed to be added to Road Register - Hodgson................ 51
12.3 Request Culvert Installation - Kangaroo Creek Crossing, on Mossvale Road, Yuleba
Attachment 1: Councillor Feedback Form - Cr. O'Neil - Owen Murphy - Request for roadworks............................................................................................................. 52
Attachment 2: Acknowledgement Letter to Owen Murphy Re: Request for Culverts - Kangaroo Creek Rd, Yuleba................................................................................ 53
Attachment 3: Yuleba Development Group - Complaint Owen and Jeanette Murphy Response from Robert Dean............................................................................... 54
Attachment 4: Councillor Customer Feedback Form - Owen Murphy - request for work on Kangaroo Crossing, Yuleba - 16/07/13............................................... 56
Attachment 5: Response to Owen Murphy Kangaroo Crossing Councilor Feedback request............................................................................................................. 57
12.4 Request - Extension of Roma Bush Gardens Footpath
Attachment 1: Tim Bolton - Customer Request - Roma Bush Gardens - 23/01/2014 58
Attachment 2: Acknowledgement Letter to Tim Bolton Re: Request for Footpath Extension - Roma Bush Gardens, Roma.............................................................. 62
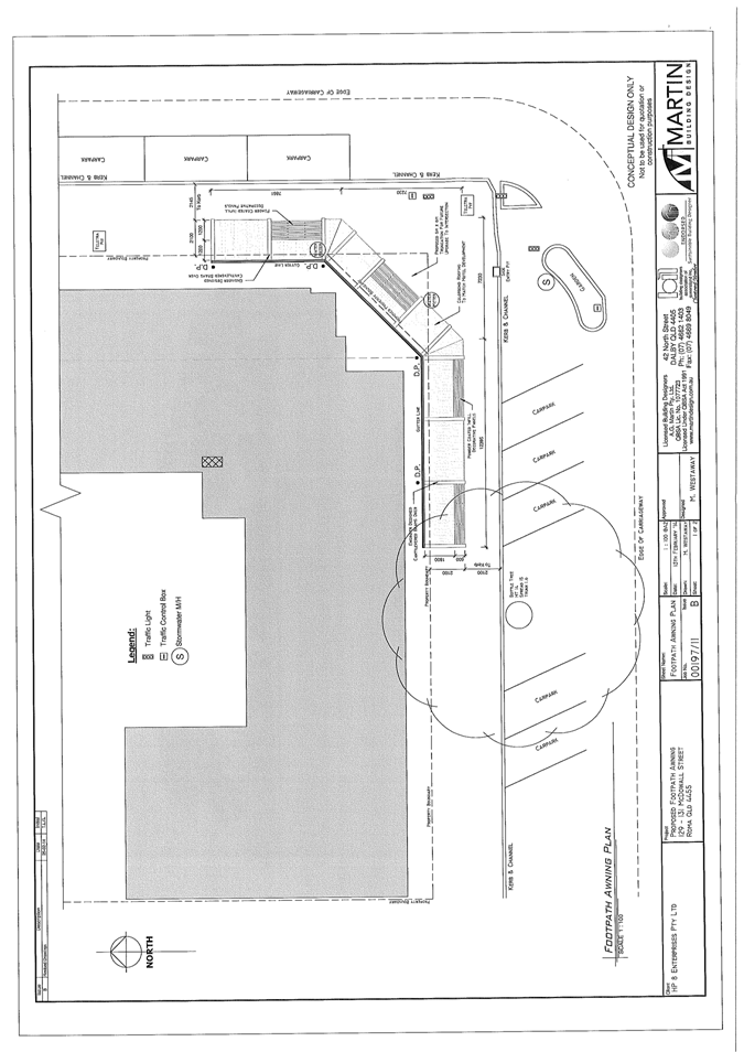
13.1 Awning Design for Proposed Motel (File: 2012/18397)
Attachment 1: Body of Report.................................................................................... 63
Attachment 2: Proposal Plans - Awning Design......................................................... 65
13.2 Animating Spaces 2014 - Community Coordinator Honorarium
Attachment : Animating Spaces Budget................................................................... 71
13.3 Term Lease 221912 - Lot 3 on WAL53581 - RES R.319
Attachment 1: Term Lease 221912 - Lot 3 on WAL53581 - Camping and Water Reserve - RES R.319, parish of Bungeworgorai......................................................... 72
Attachment 2: Map - Lot 3 on WAL53581 - Nth west of Hodgson............................. 75
13.4 Term Lease 221911 - Lot 14 on DL355 - RES R.94
Attachment 1: Term Lease 221911 - Lot 14 on DL355 - Water Reserve - RES R.94, parish of Bute..................................................................................................... 76
Attachment 2: Map - Lot 14 on DL355 - Sth of Amby................................................ 79
13.5 Term Lease 222083 - Lot 23 on WV1196 - RES R.312
Attachment 1: Term Lease 222083 - Lot 23 on WAL1196 - Water and Crossing Reserve - RES R.312, parish of Warkon..................................................................... 80
Attachment 2: Map - Lot 23 on WAL1196 - Nth East of Surat................................... 83
13.6 Acquisition of Native Title
Attachment : Map Showing Area.............................................................................. 84
13.9 Proposed Trustee Lease of Part of Reserve
Attachment : Map - Lot 128 on DL500 - Mitchell...................................................... 85
|
Department of NRAM - Proposed Permanent Road Closure of an Area of about 7.8ha being part of Myall Downs Road within Lot 5 on AB223 and shown as road to be closed on drawing DD2013/171 - Applicants: K & M Scott - 01/11/2013 |





|
Letter from Rodney Payne - Request for Reimbursement for Repair Costs to Mt Abundance Road - 2 March 2014 |

|
SLR Kruger - Copy of invoice for works carried out to repair washout gully on Mt Abundance Road for Rodney Payne - 21 December 2013 |

|
Letter from Steve Kruger, Steve's Dingo & Dozer Hire - RE Works conducted for Rodney Payne to repair & reconstruction of washout gully alongside Mt Abundance Road - 24 February 2014 |

|
Photos taken by A/CEO Michael Parker at property of Rodney Payne of repair & reconstruction of washout gully along Mt Abundance Road |




|
Letter of Support for BHM. Fiona Flanders, SQIT. 28/02/2014 |
28-02-14
To whom it may concern
I am a Leading Vocational Teacher at the Southern Queensland Institute of TAFE. I have been in this position for over fifteen years and a significant portion of my role is devoted to improving the health of communities across the Maranoa through healthy cookery classes designed to accommodate a variety of demographics.
I am writing in support of the continuation of the Be Healthy Maranoa Initiative. I have a vested interest in the longevity of this project, as I have worked closely with Be Healthy Maranoa since its inception, with very positive results for my organisation, the Roma area and the wider community.
Examples of the classes I have collaborated on with Be Healthy Maranoa include healthy catering, diabetic cookery, heart health, catering for sporting groups and general healthy cookery classes. I was also recently involved in a cookery demonstration for “Healthy Weight Week” in conjunction with the BHM team and Queensland Health.
BHM staff are instrumental in identifying target markets for classes, recruiting students, engaging in promotion and collating feedback. They also attend my classes and deliver educational components relative to the particular group. The hands-on nature of my delivery, combined with this educational aspect, has been shown to be ideal for student satisfaction and positive outcomes in regard to community health.
Performance of the roles as described above is of significant benefit to me, as I can focus on delivering quality training, knowing that the necessary preparatory work is taken care of. We have developed these roles over time into what is now a streamlined process in which everyone is confident and comfortable.
Attendance at BHM meetings is not solely about healthy cookery classes. The major benefit to me, and to TAFE as a whole, is the networking that occurs there. I recently introduced our rural teacher to BHM and she made a contact which will generate business for TAFE and assist the rural community as well. Being a small rural area, it is essential that different organisations work together in order to bring about change. BHM promotes a culture of working together, which enhances our professional interactions and sees us achieving the goals we set as a team.
My original contact with BHM was Julie Neil. She was innovative, proactive and motivated. I was extremely sorry to see her go and concerned about how she could be replaced. I believe she created a position which is now essential in the community. Natalijia has embraced Julie’s legacy and made it her own. She presents excellent ideas and has the work ethic to ensure these ideas come to fruition. Her outstanding communication skills and knowledge of the local area and its people make it easy to formulate projects and see them through to completion.
My support of Be Healthy Maranoa is long-standing. I believe that Natalijia’s position is essential, particularly given the dire statistics recently released on the health of rural residents. BHM and Natalijia in particular really make a difference. Please continue the position.
Sincerely
Fiona Flanders
(Leading Vocational Teacher, SQIT)
0429122950
|
Letter of Support for BHM. Sue Harrison, Blue Care. 26/02/2014 |
26th February 2014
To Whom It May Concern
Maranoa Health Enhancement Program (MHEP) under the auspice of Blue Care conducted a DOHA funded Rural Primary Health Service in the Maranoa and Balonne for a period of 9 years concluding 30th June 2013, with goals of achieving improved health outcomes for the rural communities of our region.
As such Maranoa Health Enhancement Program has worked closely in partnership with Maranoa Regional Council during this whole period, with successful collaborations across the Maranoa involving infrastructure, program delivery and policy change to improve health outcomes by addressing health determinants and by providing support to all in our communities to make improved lifestyle choices that build capacity and sustainability.
Some of the programs include the collaborative between Maranoa Regional Council Healthy Community Initiative and the MHEP Preventative Health Initiative which focused on the establishment of community gardens in small communities of the Maranoa and Balonne, purchase of outdoor gym equipment now managed by council in these centres, and promotion of healthy food choices by information provision, workshops and in store identification. Shared resources and promotion of programs were reciprocated by both parties ensuring decreased duplication and improved sustainability. Our organisation has also been involved in BHM since inception and values this forum to facilitate the shared goals of improved health outcomes for our communities. The associated Co-ordinator and Healthy Communities Officer position is pivotal in identifying, maintaining and co-ordinating responses to these desired outcomes and having these positions sit within such a regional presence is of definitely advantage.
Many other successful collaboratives between our two organisations have focused on reducing incidents of chronic disease burden in our community with emphasis on increasing physical activity, reduced alcohol and tobacco consumption, improved nutritional choices, mental health and co-ordination and access issues. These programs were always evaluated for relativity, learnings and application and rated highly and in the main between 75%- 95% satisfaction. Blue Care continues it partnering with your organisation through the delivery of nutritional education to our aged care cohort also.
Our organisation fully supports the Be Healthy Maranoa program and as such the staff attached to this and hope to continue our successful partnerships and shared goals of improved health for the communities of the Maranoa well in to the future.
Yours faithfully
![]()
Sue Harrison
Multi Service Manager
Blue Care Maranoa, Charleville, Cunnamulla
|
Letter of Support for BHM. Fiona Vincent, MRC Sport and Rec. 04/03/2014. |
4 March 2014
To Whom it May Concern,
Letter of Support - Be Healthy Maranoa Initiative
I am writing to display strong support towards the continuation of the Be Healthy Maranoa (BHM) program that has been operational within Maranoa Regional Council for three and a half years and would like to highlight some positive and beneficial aspects which have enhanced sport and recreation delivery during that time, within the Maranoa.
Being involved with BHM from the project inception I have seen valued growth and collaborated assistance with a wide range of community groups in the Maranoa. Representatives from local health care groups, aged care and seniors groups, disabled and indigenous groups and sport and education, meet regularly through BHM to canvass ideas and link together and partner on various programs.
Benefits I have witnessed of the BHM program are wide-ranging across all communities in the Maranoa taking into consideration each one’s unique situations of age and cultural demographics. This has included the sharing of resources and opportunities to increase data bases for promotion and awareness of services and programs being conducted across the Maranoa.
As Coordinator Sport and Recreation with Maranoa Regional Council, I have worked closely with Kate Thompson, Julie Neil and Natalija Pearn, Coordinators for BHM to identify community needs and work toward improved sport and recreational prospects for a range of varied community members. My favourite BHM projects delivered are the installation of outdoor gym equipment and community gardens along the walking trails, web page with sporting group contacts for new residents to view, and the document prepared for a western extension route to Roma’s Adungadoo Pathway. I have enjoyed an extremely positive and rewarding relationship with all Coordinators and believe it is vital to retain a health-focused position within Council, for a networking and coordination focus involving numerous pivotal health-focused groups within the region.
In conclusion I reiterate my overall support towards the efforts of the BHM Initiative and would like to see this project retained within Council to progress current programs already in place, those in the planning stages and to continue partnering and building valuable tools and resources to be used by community members.
Yours faithfully,
Fiona Vincent
Coordinator - Sport and Recreation
|
Letter of Support for BHM. Kathy Morrow, South West Hospital and Health Service. 04/03/2014 (Signed) |


|
Megan Cau - Request for Concrete Kerbing to the Access of 33 King Street, Surat - 20/01/2014 |

|
Initial Acknowledgement to Megan Cau re Concrete Kerbing to the Access of 33 King Street, Surat |
Customer Reference ID: 43
Our Ref: D14/4364; D14/6549
14 January 2014
M/s Megan Cau
‘Esk Creek’
Glenmorgan Qld. 4423
Dear M/s Cau
Re: Request for Concrete Kerbing to the Access of 33 King Street, Surat
Thank you for your letter that was received by my office on 22 January, 2014.
I have tasked this item to the Infrastructure Planning Unit who will coordinate a reply for you. Please note that it may require costing and a report to Council for budget consideration.
If you haven’t received a further update by 12 February, 2014, you are welcome to contact Sheree Hurle within the Office of the Director Infrastructure Services on 4624 0748. Sheree will follow up the matter on your behalf.
Please be assured that our officers aim for a quicker response if at all possible.
Yours sincerely
Julie Reitano
Chief Executive Officer
|
Acknowledgement Letter to Megan Cau Re: Request for Concrete Kerb - 33 King St, Surat |
Customer Request Ref: 43
Our Ref: D14/4364; D14/8065
Enquiries: Clara Aitken
Phone: 4624 0712 (Direct) or
1300 007 662 (via Customer Service)
Office: Infrastructure Services
10 February 2014
Megan Cau
“Esk Creek”
GLENMORGAN QLD 4423
Dear Megan
Re: Request for Concrete Kerb – 33 King Street, Surat
Thank you for your letter addressed to Council’s Chief Executive Officer, Ms Julie Reitano, received on 22 January 2014, outlining your request for Council to provide concrete kerbing to 33 King Street, Surat.
I have undertaken an initial review of your request and have allocated this matter to Kylie Fleischfresser – Specialist Infrastructure Planning for further investigation. Following this investigation, a report will go to the Council meeting of 12 March 2014 for resolution.
Following this meeting we will advise you of the outcome.
Again, thank you for bringing this matter to the attention of Council’s Chief Executive Officer Ms Reitano, I will continue to keep you informed through to finalisation of your request.
Please do not hesitate to contact Clara Aitken of my office on (07) 4624 0712, or by email – clara.aitken@maranoa.qld.gov.au, if you have any further questions or concerns with progression of this matter.
Yours faithfully
Kym Downey
Manager – Infrastructure Planning & Design
|
Acknowledgement Letter to Owen Murphy Re: Request for Culverts - Kangaroo Creek Rd, Yuleba |
Customer Request Ref: 956
Our Ref: D14/9731; D14/12185
Enquiries: Clara Aitken
Phone: 4624 0712 (Direct) or
1300 007 662 (via Customer Service)
Office: Infrastructure Services
24 February 2014
Mr Owen Murphy
“Mossvale”
YULEBA QLD 4427
Dear Mr Murphy
Re: Request for Culverts – Kangaroo Creek Road, Yuleba
Thank you for your Councillor Customer Feedback form addressed to Councillor Cameron O’Neil dated 10 February 2014, outlining your request for Council to provide culverts on Kangaroo Creek Road, Yuleba.
I have undertaken an intial review of your request and have allocated this matter to Kylie Fleischfresser – Specialist Infrastructure Planning for further investigation. Following this investigation, a report will go to the Council meeting of 12 March 2014 for resolution.
Following this meeting we will advise you of the outcome.
Again, thank you for bringing this matter to the attention of Council, I will continue to keep you and Councillor O’Neil informed through to finalisation of your request.
Please do not hesitate to contact Clara Aitken of my office on (07) 4624 0712, or by email – clara.aitken@maranoa.qld.gov.au, if you have any further questions or concerns with progression of this matter.
Yours faithfully
Kym Downey
Manager – Infrastructure Planning & Design
|
Yuleba Development Group - Complaint Owen and Jeanette Murphy Response from Robert Dean |


|
Councillor Customer Feedback Form - Owen Murphy - request for work on Kangaroo Crossing, Yuleba - 16/07/13 |

|
Acknowledgement Letter to Tim Bolton Re: Request for Footpath Extension - Roma Bush Gardens, Roma |
Customer Request Ref: 44
Our Ref: D14/4602; D14/8168
Enquiries: Clara Aitken
Phone: 4624 0712 (Direct) or
1300 007 662 (via Customer Service)
Office: Infrastructure Services
10 February 2014
Mr Tim Bolton
Via E-mail: timothy.bolton@hotmail.com
Dear Mr Bolton
Re: Request Footpath Extension for Roma Bush Gardens, Roma
Thank you for your e-mail correspondence to Council dated 22 January 2014, outlining your request for Council to provide an extension to the footpath (corner of Feather and Chrystal Streets) at Roma Bush Gardens, Roma.
As discussed with Clara Aitken – Support Officer Infrastructure Planning & Design, I have allocated this matter to Kylie Fleischfresser – Specialist Infrastructure Planning for further investigation. Following this investigation, a report will go to the Council meeting of 12 March 2014 for resolution.
Following this meeting we will advise you of the outcome.
Again, thank you for bringing this matter to the attention of Council, I will continue to keep you informed through to finalisation of your request.
Please do not hesitate to contact Clara Aitken of my office on (07) 4624 0712, or by email – clara.aitken@maranoa.qld.gov.au, if you have any further questions or concerns with progression of this matter.
Yours faithfully
Kym Downey
Manager – Infrastructure Planning & Design
|
Body of Report |
Background Information
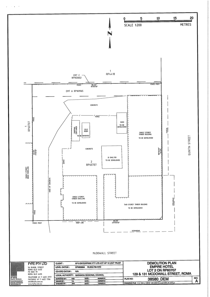
The site is situated at 129-131 McDowall Street, Roma, shown in Figure 1.

Figure 1: Subject Site (Source: SARA mapping online)
Council issued a development approval for a Motel (25 units and manager’s residence) on the site on 29 July 2013. The applicant subsequently sought and obtained a Negotiated Decision Notice for the development on 18 December 2014. It is a requirement of the Negotiated Decision Notice that an amended awning design be submitted to Council for review and approval.
Condition 56 of the Negotiated Decision Notice reads:
“An awning over a pedestrian footpath must be provided in accordance with the approved plans listed in condition 3 and must accord with DTMR requirements for lateral and vertical clearances for awnings along both streets and truncation. The design of the awning is to be amended, where necessary, to ensure that the bottle tree located within McDowall Street (shown on Drawing No.00197/11, sheet 4), is retained and protected”.
To satisfy the requirements of condition 56, the applicant has submitted an amended awning design for Council’s consideration.
The proposed awning has been designed to align with a 6x6 metre truncation at the corner of the site on McDowall Street and Quintin Street, and extends along the footpath in both directions for a distance equivalent to the former Empire Hotel awning. The awning measures 2.1 metres in width and is located clear of the existing bottle tree in McDowall Street.
The design comprises cantilevered beams over the footpath with a mix of colorbond roof sheeting and decorative panels to add light and variation.
The awning design was reviewed by the Department of Transport and Main Roads (DTMR) as a concurrence agency for the original application. DTMR have advised that the design appears compliant the requirements of their Road Planning and Design Manual. DTMR have also advised that a Road Corridor Permit will be required to establish the awning within the road reserve.
The awning design achieves the outcomes sought by both the current Roma Town Planning Scheme and draft Maranoa Planning Scheme with respect to local character and pedestrian amenity. The awning will be subject to building works approval.
|
Term Lease 221912 - Lot 3 on WAL53581 - Camping and Water Reserve - RES R.319, parish of Bungeworgorai |



|
Term Lease 222083 - Lot 23 on WAL1196 - Water and Crossing Reserve - RES R.312, parish of Warkon. |


